使用 Office Visio通过图表进行表达,可以最大程度地影响用户,而单独的文字和数字是无法做到的。可与任何人(甚至是没有安装 Visio 的用户)共享具有专业外观的 Office Visio。 使用 Visio 来创建可传达丰富信息的具有专业外观的图表。visio通过使用 Office Visio 中的新增功能和改进功能,更有效地沟通并以更多方式来影响更广泛的用户。使用新增的形状和图表类型进行有效交流。使用 Office Visio 中简化的图表类别可以轻松找到适合您需要的模板。其中的 ITIL(IT 基础设施库)模板和价值流图模板等新增模板可以创建种类更广泛的图表。使用新增的三维工作流形状可以创建更动态的工作流。 设计具有专业外观的图表。使用 Office Visio 中新增的主题功能,只需单击一次,即可方便地设置整个图表中的颜色和效果的格式。Office Visio 甚至可与 Microsoft Office PowerPoint 使用相同的颜色,因此做到轻松设计与 PowerPoint演示文稿相配且具有专业外观的 Visio 图表。还可以来对网络工程中的一些工程进行布置和策划。

?
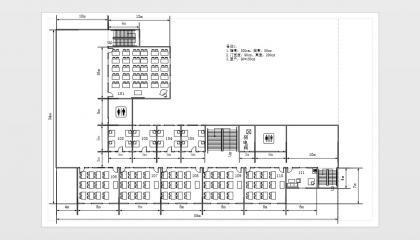
以上便是使用VISIO所设计成的一个办公环境,上面有着各种房间的设施,楼梯等等,如需添加布置环境中的一些设施可在以下图中可以布置。

?

?
如果需要添加网络设备等,可选中其他形状中的网络便可找到你所需要的设施,使用特别方便简易。
还可以制作流程图等。按照以下图片中的步骤便可制作成你所需要的流程图:

?

?

?

?

?

?

?

?

?

?

……